Биокамин сквозной SteelHeat ONE 900 предназначен для встраивания в ниши из гипсокартона, кирпича, пеноблоков, бетона или в мебель. При установке биокаминов в мебель необходимо встраиваемую часть очага покрыть теплоизоляционным материалом!
Биокамин сквозной SteelHeat ONE 900 прекрасно подойдет под любой стиль интерьера. Живой огонь наделит ваш интерьер особым шармом и роскошью. Биокамин сквозной SteelHeat ONE 900 подходит для установки в помещения любых размеров и является абсолютно безопасным. Биокамин сквозной SteelHeat ONE 900 выполняет не только декоративную роль, но и обогревающую, благодаря чему вы сможете прекрасно провести время возле него в холодные зимние вечера.
Особенности конструкции
Топливный блок:
- Топливный блок выполнен из жаропрочной коррозиестойкой нержавеющей стали.
- Толщина металла верхней части составляет 7 мм, в комбинации с пазогребневой системой крепления к корпусу дает устойчивость топливного блока к деформации при нагреве. Иными словами, его не будет выгибать или выворачивать винтом при эксплуатации. Особенно это проявляется на больших размерах. Геометрия топливного блока сохранится.
- Проверка сварных швов ультразвуком исключает наличие слабых мест и скрытых дефектов после сварки, что гарантирует максимальный уровень безопасности
- Герметизация швов топливного блока производится специальным термостойким эластичным герметиком, который обеспечивает дополнительную герметичность соединений. В отличии от обычного печного герметика не осыпается от длительного использования, так как металл при нагреве «играет»!
- Металлическая решетка в зоне горения огня обеспечивает необходимое пространство для скопления паров биотоплива. Горит не само топливо, а его пары. Размер отверстий решетки подобран таким образом, чтобы обеспечить оптимальный уровень огня, при экономичном расходе биотоплива.
- Специальный наполнитель из керамической ваты впитывает биотопливо. Это предотвращает вытекание топлива. Уменьшается скорость испарения биотоплива за счет чего достигается экономичность использования. Керамическая вата может использоваться при высоких температурах, что гарантирует сохранение функциональности на многие часы горения биокамина.
- Верхняя часть топливного блока имеет специальную задвижку толщиной 4 мм, с помощью которой можно регулировать интенсивность горения пламени, а так же потушить в любой момент, не дожидаясь, когда топливо догорит.
Уделяйте особое внимание выбору топливных блоков – от этого зависит безопасность Вашего помещения и срок эксплуатации биокамина в целом!
Очаг:
- Биокамин поставляется в готовом виде и не требует сборки.
- Цельносварная конструкция очага обеспечивает монолитность биокамина и исключает все возможные дефекты, проявляющиеся у резьбовых соединений, связанных с деформацией от нагрева при длительном использовании.
- Толщина очага 2,5 мм и специально подобранный сплав обеспечивает устойчивость металла к деформации от длительного нагрева. Мы долго тестировали разную толщину металла и нашли золотую середину без ущерба качеству! Более тонкие очаги со временем может «повести». Если же наоборот делать металл толще, то это увеличит его стоимость и вес, а полезных характеристик, относительно 2,5мм, уже не прибавится.
- Вытяжка и дымоход не требуется!
- Продукция сертифицирована и имеет гарантию производителя 10 лет. Не нужно докупать никаких приспособлений, биокамин сразу готов к использованию. Единственное, что Вам нужно сделать это купить биотопливо.
Основные характеристики биокамина:
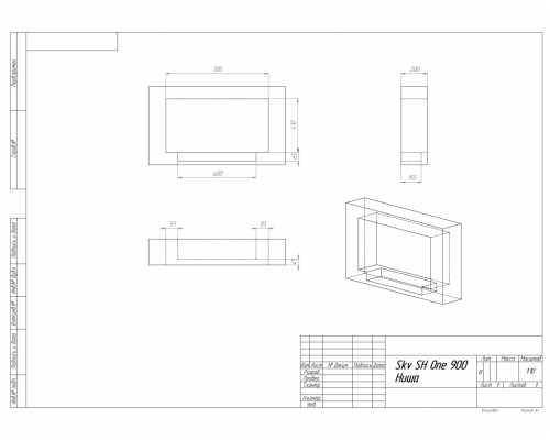
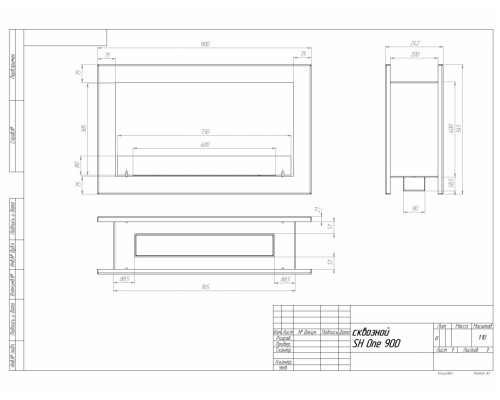
- Габариты (ВхШхГ): 545 мм х 900 мм х 242 мм;
- Размер топливного блока: 600 мм;
- Линия огня: 500 мм;
- Время горения около 4 часов;
- Объем заливаемого топлива: 1,89 л.
Дополнительная комплектация:
- Защитное стекло – термоустойчивое закаленное стекло со специальной рамкой высотой 80 мм и толщиной 6 мм. Данный элемент выполняет защитную и декоративную роль;
- Стемалит - закаленное стекло, выдерживающее температуру до 700 градусов. Благодаря данному элементу увеличивается объем пламени за счет отражающего эффекта.
Основные характеристики
Внешние габариты
Встраиваемые размеры
Управление
Очаг
Топливный блок
Информация о производителе
Нет отзывов об этом товаре.
Нет вопросов об этом товаре.
SteelHeat
Уже более 3-х лет бренд TM "SteelHeat" создает красивые и стильные биокамины. Российский производитель делает упор на отличное качество, интересный дизайн и эффективные дизайнерские решения, для чего ведет сотрудничество с ведущими тех... Подробнее...|
БЕЗОПАСНАЯ ПОКУПКА Предоставляем все официальные документы |
БОЛЕЕ 900 ПУНКТОВ ВЫДАЧИ Гарантированно и надежно доставляем биокамины |
